Référence : 02277-00004-00001-00001

T3 - Vente

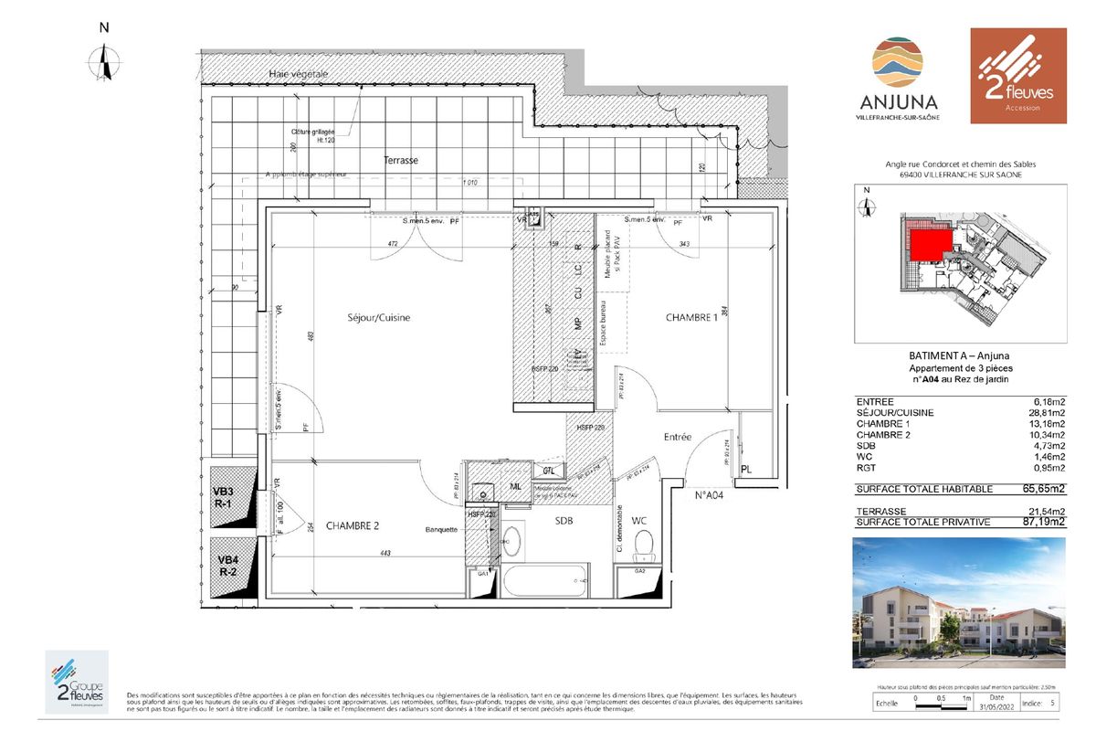
Résidence Anjuna - Appartement 3 pièces à Villefranche-sur-Saône

Bénéficiez dès à présent de tous les avantages d'un logement récent : frais de notaire réduits, norme NF Habitat, éligible au PTZ. Profitez également d'une TVA réduite et exonération de taxe foncière pendant 15 ans ! Votre appartement 3 pièces a été conçu pour favoriser les moments de partage et de convivialité, avec des espaces spacieux pour un confort optimal. Le logement d'une superficie de 65,20 m² offre une belle pièce de vie de 28,81 m², ainsi que deux chambres spacieuses, d'une salle de bains et d'un WC séparé. Profitez d'une terrasse de 21 m² qui est un véritable prolongement de votre logement. Le prix comprend un garage et d'une cave. Le prix est indiqué en TVA 5,5% hors frais de mutation (frais de notaire). Surface : 65,20 m² Chauffage : Chaudière gaz individuelle Etage : RDC Pour plus d'informations sur les conditions et les critères d'éligibilité, n'hésitez pas à nous contacter.

poser une question sur ce bien

Informations sur le bien

Surface : 65 m2

Prix : 209000 €

Ascenseur : Oui

Exposition : ouest

Chauffage : Type : individuel

Nombre de chambres : 2

DPE GES : C

DPE Consommation : B

Contact : 2 FLEUVES RHONE HABITAT LOCATION