Référence : Marronnier-lot-14

T4 - Vente

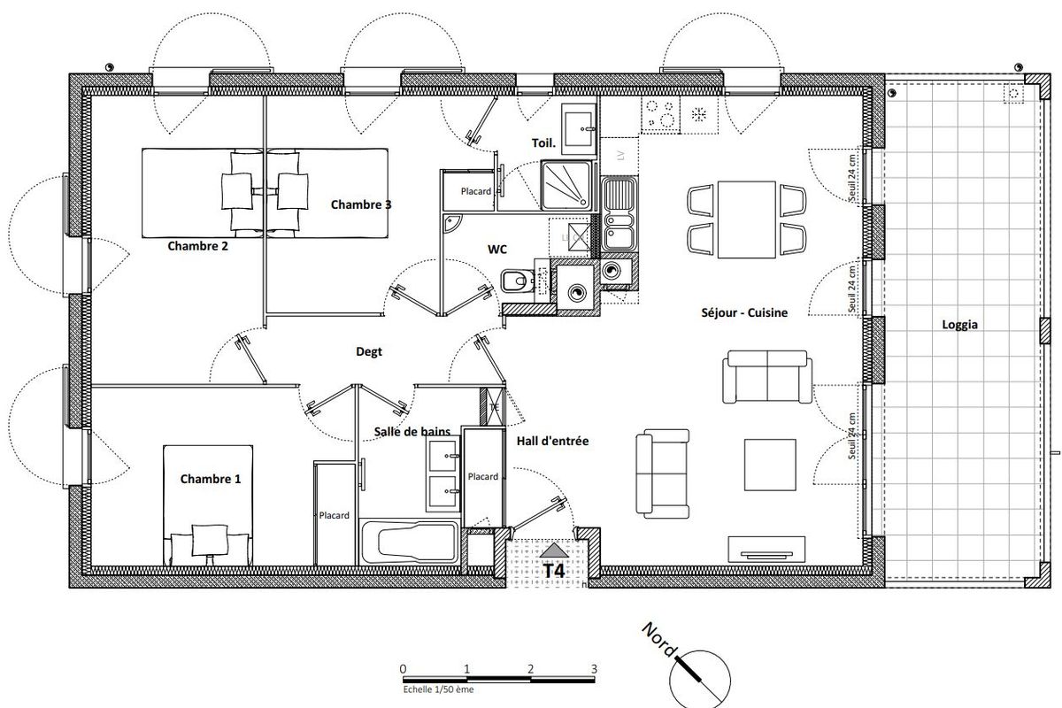
Appartement T4 - Millery

Dernière opportunité - Achetez avec le Bail Réel Solidaire Idéalement situé au cœur de Millery, la résidence Les Jardins du Puits vous offre un accès facile et rapide à toutes les commodités : écoles, commerces, restaurants et pôle santé. Au premier étage, cet appartement de 4 pièces, aux volumes généreux et parfaitement agencé, a été conçu selon les tendances actuelles. Il offre une pièce de vie spacieuse et lumineuse de 36 m², prolongée par une terrasse de 19,50 m², idéale pour profiter des beaux jours. L'espace nuit comprend une suite parentale avec salle d'eau attenante, deux chambres avec de beaux volumes, une salle de bains et un WC indépendant. Le prix de vente inclus un garage. Pourquoi choisir le BRS ? - Prix d'achat attractif : Un véritable tremplin vers la propriété pour les ménages souhaitant réaliser leur rêve immobilier. - Avantages de l'achat : Profitez du Prêt à Taux Zéro, du taux de TVA réduit (5,5%), de frais de notaire réduits et d'une garantie de rachat. Ne manquez pas cette opportunité unique de devenir propriétaire grâce au Bail Réel Solidaire (BRS) ! Contactez-nous dès à présent pour plus d'informations et découvrez votre futur chez-vous. *Le Bail Réel Solidaire est un dispositif d'accès social à la propriété de sa résidence principale, à prix abordable et sous conditions de ressources, correspondant à ceux du prêt social à l'accession (PSLA).

poser une question sur ce bien

Informations sur le bien

Commune : Millery

Surface : 84 m2

Prix : 290000 €

Ascenseur : Non

Etage : 1

Exposition : ouest

Chauffage : Type : individuel

Nombre de chambres : 2

DPE GES : C

DPE Consommation : A

Contact : 2 FLEUVES RHONE HABITAT LOCATION