Référence : 01158-00001-00001-00005

T3 - Vente

Appartement - T3 Tarare

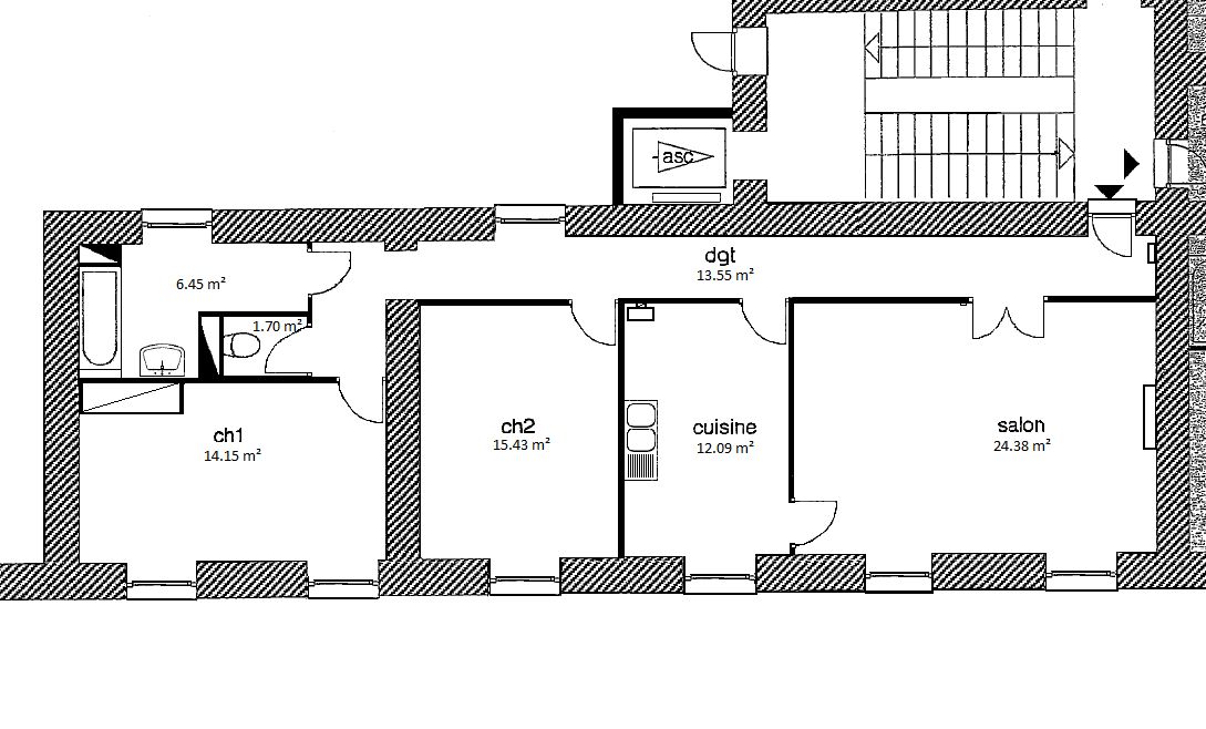
A deux pas du parc Thivel, cet appartement de 3 pièces au 2ème étage dispose de beaux volumes et offre un cadre de vie pratique et agréable. Situé dans une résidence avec ascenseur, il se compose d'un séjour, d'une cuisine indépendante, de deux chambres très spacieuses, d'une salle de bains et d'un WC. Des travaux sont envisageables pour ouvrir la cuisine sur le séjour et optimiser l'espace du couloir. Son emplacement central permet de profiter facilement des commerces, des écoles et des transports à proximité. Logement 5 (lot n°14) - Copropriété de 23 lots (14 logements). Chauffage gaz individuel. Estimation des charges mensuelles : 105 €. DPE "D" (162). Les visites seront assurées par les collaborateurs de Deux Fleuves Rhône Habitat pendant les horaires d'ouverture. Les offres d'achat pourront être remises par mail ou par courrier. La date limite de remise des offres est le : jeudi 29 janvier 2026. La vente de logements sociaux est soumise à la loi ELAN - Article L443-11 du CCH et du décret n°2019-1183. Les informations sur les risques auxquels ce bien est exposé sont disponibles sur le site Géorisques : https://www.georisques.gouv.fr/

poser une question sur ce bien

Informations sur le bien

Commune : Tarare

Surface : 87 m2

Prix : 129000 €

Ascenseur : Oui

Etage : 2

Chauffage : Type : individuel

Nombre de chambres : 2

DPE GES : D

DPE Consommation : C

Contact : 2 FLEUVES RHONE HABITAT LOCATION